Количество пользователей5
Залповый сброс300 л
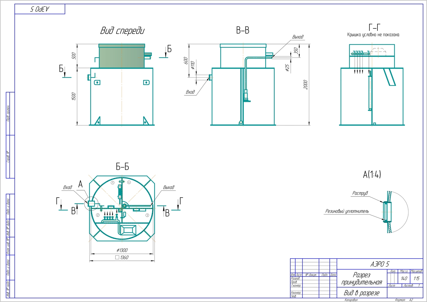
Объём переработки1 м3/сут
Насоснет
Глубина залегания трубы 60см
Высота2 м
Длина1.3 м
Ширина1.3 м
Вес78 кг
Гарантия производителя5 лет
Гарантия на пуско-наладочные работы (шеф монтаж):1 год
Гарантия при монтаже «под ключ»:1 год
Потребляемая энергия1.7 кВт/сут
ПроизводительГРИНЛОС
Документация
ГРИНЛОС Аэро 5 Пр – это септик со встроенным насосом, который обеспечивает принудительный отвод чистой воды в точку сброса. Этот процесс является полностью автоматическим, отвод воды осуществляется в канаву, дренажный элемент или колодец. Применение данной модели рекомендуется в регионах с уровнем грунтовых вод выше нормы и при условии, что глубина врезки канализационной трубы до 60 см.
В комплект поставки септика ГРИНЛОС Аэро 5 Пр входят следующие комплектующие:
Запасные части и дополнительное оборудование поставляются по отдельному заказу.
| Септик | Шеф-монтаж | Монтаж в определенный тип грунта | Монтаж под ключ | |||
|---|---|---|---|---|---|---|
| Песок | Суглинок | Глина | Плывун | |||
| ГРИНЛОС Аэро 5 Пр | 9 000 руб. | 28 000 руб. | 28 000 руб. | 28 000 руб. | 43 000 руб. | 186 850 руб. |
| Основные | |||
| Количество пользователей | 5 | 5 | 5 |
| Залповый сброс, л | 280 | 320 | 210 |
| Объём переработки, м3/сут | 1 | 1 | 1 |
| Насос | нет | нет | нет |
| Глубина залегания трубы, см | до 85 | до 60 | до 60 |
| Высота, м | 2.36 | 2.38 | 2.1 |
| Длина, м | 1.110 | 1 | 1.5 |
| Ширина, м | 1.11 | 1 | 1.4 |
| Вес, кг | 131 | 98 | 164 |
| Гарантия производителя | 3 года | 5 лет | 3 года |
| Гарантия на пуско-наладочные работы (шеф монтаж): | 1 год | 1 год | 1 год |
| Гарантия при монтаже «под ключ»: | 1 год | 1 год | 1 год |
| Потребляемая энергия, кВт/сут | |||
| Производитель | Волгарь | Евробион | Евролос |
